Label Confiance, contrôle tous les 5 ans
4 personnes
1 chambre
1 lit
1 salle d'eau
Animaux acceptés
Numéro d'agrément
8306
Surface
60 m²
Lits
1
(2 x lit double et 2 x lit simple)
Dépôt de garantie
500,00 €
Les plus de l'hébergement
Description
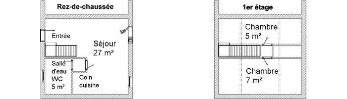
Village de 10 meublés mitoyens à proximité du port (100 m) et du sentier des douaniers. Au sein d'une anse de la côte Nord de la presqu'île de la Hague, vous serez charmés par ce décor unique et sauvage ! L'atmosphère des hameaux typiques de ce littoral très découpé est envoûtante... Pavillon mitoyen. Rdc : Séjour (canapé convertible). Coin-cuisine. Salle d'eau avec wc. Etage : Mezzanine (2 lits 90). 1 chambre (1 lit 140). TV. Buanderie (1 lave-linge et 1 sèche-linge commun). Draps et linge de toilette non fournis. Ménage de fin de séjour en supplément. Chauffage électrique en supplément facturé au tarif en vigueur. Terrain non clos privé. Terrasse. Salon de jardin. Barbecue. Parking. Baby-foot.Tennis de table. Epicerie à 100m. Wifi à l'accueil du camping. Caution ménage demandée sur place.
Les pièces
Mezzanine
Chambre indépendantes
Salle de bains / d'eau
Équipements intérieurs
Équipements extérieurs
Parkings
High-tech
Loisirs
À proximité
Le Manoir du Tourp, lieu d’exposition et centre de ressources/documentation de la Hague Nez de Jobourg, zone géologique la plus ancienne du Cotentin – très belles balades à faire Baie d’Ecalgrain à Auderville Port de Goury Port racine, l’un des plus petits ports de France Jardin botanique de Vauville (4.5 hectares) La maison (et la tombe) de Jacques Prévert à Omonville la Petite La maison de Jean-François Millet à Gréville Hague Cherbourg, la cité de la Mer et son exposition sur le Titanic ou le sous-marin « Le Redoutable », ses musées d’histoire naturelle ou d’art, son théâtre à l’italienne, sa rade (plus grande rade artificielle du monde), le fort du Roule
Plan d'accès
Suivre la direction du Port du Hâble et suivre les panneaux "Gites de mer"
Localisation
À découvrir dans les environs
Propriétaire

Labels Manche
Propriétaire Clévacances depuis avril 2014
Langue: Anglais
Voir le site internet du propriétaire
Labels Manche qualifie l’offre touristique et contrôle la qualité du parc Clévacances tout en commercialisant certains hébergements.
Je réserve

Labels Manche
Propriétaire Clévacances depuis avril 2014
Langue: Anglais
Voir le site internet du propriétaire
Des pépites dans votre boite mail
Recevez les dernières réductions, bon plans et nouveautés Clévacances avant tout le monde !
Suivez-nous sur les réseaux et partagez vos souvenirs de vacances avec le hashtag #clevacances
Notre réseau
Liens utiles
Navigation
Chambres d'hôtes en France
Location de vacances en France
Gîtes en France
© 2026 Clévacances. Tous droits réservés.