Trust label, checked every 5 years
4 persons
2 rooms
3 beds
1 bathroom
Pets allowed
Approval number
8305
Surface
60 m²
Beds
3
(1 x double bed and 2 x single bed)
Guarantee deposit
€500.00
The advantages of the accommodation
Description
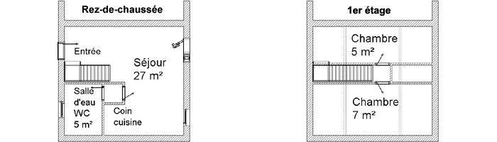
Terraced holiday house. Living room. Kitchenette. 1st bedroom : 1 double bed. 2nd bedroom : 2 single beds. 1 sofa bed. Shower room. Toilet. TV. Laundry (1 washing machine and 1 dryer). Disposable bed linen and house linen rental. Final cleaning on request (extra charge) Electric heating not included in the price. Private garden. Terrace. Garden furniture. BBQ. Car park. Tennis table. Pets allowed with an extra charge of 5€/day. Wifi at reception desk. Village of ten adjoining gîtes. Reception building with entertainments room and reading room. Small harbour 100m.
Rooms
Independent rooms
Independent rooms
Salle de bains / d'eau
Interior equipment
Outdoor equipment
Parking lots
High-tech
Nearby
Le Manoir du Tourp, exhibition and resource/documentation centre in La Hague Nose of Jobourg, the oldest geological area in the Cotentin - very beautiful walks to do Ecalgrain Bay in Auderville Port of Goury Root port, one of the smallest ports in France Vauville Botanical Garden (4. 5 hectares) Jacques Prévert's house (and tomb) in Omonville la Petite Jean-François Millet's house in Gréville Hague Cherbourg, the city of the Sea and its exhibition on the Titanic or the submarine "The Redoutable";, its natural history or art museums, its Italian theatre, its harbour (the largest artificial harbour in the world), the fort du Roule
Access map
Suivre la direction du Port du Hâble et suivre les panneaux "Gites de mer"
Location
To discover in the surrounding area
Owner

Labels Manche qualifie l’offre touristique et contrôle la qualité du parc Clévacances tout en commercialisant certains hébergements.
Book

Labels Manche
Clévacances owner since April 2014
Language: English
View the owner's website
Nuggets in your inbox
Receive the latest discounts, good deals and new Clévacances products before anyone else!
Follow us on social media and share your vacation memories with the hashtag #clevacances
Our network
Bed and Breakfast in France
Holiday rentals in France
Gites in France
© 2025 Clévacances. All rights reserved.