Trust label, checked every 5 years
Vacation rental
Labelised 4 persons
2 bedrooms
3 beds
Max. 4 persons
They loved it
10 opinion
10.0























Golf Course
Sea
Private parking
4 persons
2 rooms
3 beds
1 bathroom
Pets not allowed
Approval number
017MS000315
Surface
51 m²
Equipped for babies
Yes
Beds
3
(1 x double bed and 2 x single bed)
Owner's payment methods
Cheque
Guarantee deposit
€400.00
The advantages of the accommodation
Description
Enjoy a pleasant stay in this vacation home on the island of Oléron, located in the charming Cotinière neighborhood with its lively and picturesque fishing port. * You will benefit from an ideal location for your vacation, with La Cotinière beach just 500 meters from the rental. * The port, shops, and daily market are about 800 meters away. Nightly activities are offered on the port every evening during the season. * Situated in a quiet cul-de-sac and adjacent to the owners' residence, this house comprises a living area with an equipped kitchen open to the living/dining room, one bedroom with a 140 cm bed, a second bedroom with two 90 cm beds, a bathroom, and separate toilets. * Outside, you will find a blooming garden with a terrace and garden furniture, as well as aromatic plants at your disposal. * Explore the island through beautiful bike rides starting from the cycling paths just steps away from the rental. * Fish, seafood, shellfish, fresh or organic vegetables to pick, Pineaux, and organic wines can be found within a 5 km radius. * A closed garage is available to store your bikes safely. * During the season, free bus shuttles are available to take you to the island's beaches. The rental has been fully renovated. It undergoes annual maintenance and upgrades to keep it clean, welcoming, and functional, meeting tenants' expectations. 1°) Arriving via LA COTINIERE * Pass by the port. * Continue straight for a distance of 830 meters along Rue du Port and then Avenue des Pins. * You will arrive in front of the pharmacy. * Take the first road on the right towards SAINT PIERRE. * After 340 meters, you will reach 32 Route des Châteliers. * Enter the private path on the right: you have arrived.
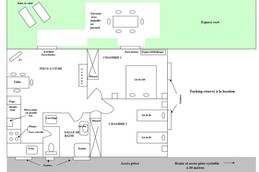
Rooms
Independent rooms
Ground floor
Independent rooms
Ground floor
Kitchen in the living / dining room
Ground floor
Bathroom
Ground floor
Espace terrasse
Ground floor
Jardin, parc paysager
Ground floor
Jardin avec un endroit clos pour garer votre voiture dans l'espace prévu à cet effet
Supplements
Ménage en supplement
Merci de sortir les poubelles, de vider le réfrigérateur et de prendre soin de ne pas oublier vos affaires.
€50.00 / séjour
Linge de lit
Pour chaque lit une parure complète
€20.00 / séjour
Interior equipment
Outdoor equipment
Parking lots
High-tech
Nearby
-Close to the Cotinière, -Close to the Saint-Trojan train, -The Ileo aquatic centre, -Close to the beaches of the Ile d'Oléron, -Close to the port of La Cotinière, -Close to the Victorine market
Access map
COMMENT VOUS RENDRE A LA LOCATION ? 1°) En arrivant par LA COTINIERE Vous passez devant le port Vous continuez tout droit sur une distance de 830 mètres en empruntant la rue du port puis l'avenue des pins. Vous arrivez devant la pharmacie. Vous prenez la première route à droite en direction de SAINT PIERRE. Après 340 mètres vous êtes arrivés au 32 route des Châteliers. Engagez vous dans le chemin privé à droite : vous êtes arrivés. BIENVENUE ET BON SEJOUR CHEZ NOUS ! 2°) En arrivant par SAINT PIERRE D'OLERON A partir de la pancarte d'entrée dans SAINT PIERRE , continuer tout droit direction de CHERAY, SAINT GEORGES, LA BREE, Phare de CHASSIRON. Après 1.63 Km, vous passez devant un magasin ''Mr BRICOLAGE''. Prendre alors la file de gauche pour tourner à gauche au feu tricolore situé à 200 mètres après le magasin ''Mr BRICOLAGE'' : direction : Les Châteliers, La Ménounière, La Chefmalière. Après avoir traversé le croisement des Châteliers (attention aux ralentisseurs un peu sévères) et le hameau des FIGERASSES, vous arrivez à LA COTINIERE. 200 mètres après la pancarte LA COTINIERE, tourner à gauche pour vous engager dans le chemin privé au 32 route des Châteliers. Vous êtes arrivés. BIENVENUE ET BON SEJOUR CHEZ NOUS !
Location
To discover in the surrounding area
Owner
Jean-marie
Clévacances owner since October 2020
Traveler reviews
10
They loved it
Based on 10 reviews
Home
10/10
Cleanliness
10/10
Comfort
9.9/10
Place
9.9/10
Quality/Price
10/10
Nuggets in your inbox
Receive the latest discounts, good deals and new Clévacances products before anyone else!
Follow us on social media and share your vacation memories with the hashtag #clevacances
Our network
Bed and Breakfast in France
Holiday rentals in France
Gites in France
© 2025 Clévacances. All rights reserved.